3.2.4.- Las tenadas.

Antes de adentrarnos en el asunto medular de este trabajo, las tenadas y apriscos de Carazo, deseamos puntualizar a qué nos estamos refiriendo. Para aclarar conceptos acudiremos al diccionario de la RAE en busca de la definición que nos aporta. Dice así: “Tenada: (del latin “tignata”, de “tingum”, madero). Tinada: cobertizo. En Asturias y León, henil.”; “Tinada (De latín “tignata”, de “tingum”, madero) “Cobertizo para tener recogidos los ganados, particularmente los bueyes”, Tinado: (del lat. “tignatus”, de tin gum, madero) “Cobertizo de ganado”. En Soria, Guadalajara y Segovia la denominan como “taina”, “teina” o”teinada”.

Para la Wikipedia “Una taina, tenada o tinada, es una construcción arquitectónica característica de la sierra de Ayllón (entre las provincias de Segovia y Guadalajara), y de otras sierras limítrofes a ésta y a las provincias de Madrid y Soria, que sirve como parideras y como cobertizo o majada para el ganado en las zonas de alta montaña. Pueden encontrarse aisladas en la montaña o agrupadas formando las tinadas, dentro de los pueblos o alejados de éstos. En algunas ocasiones, las tainas llevan adheridas una vivienda e, incluso, las tinadas han llegado a ser origen de pueblos, como es el caso de Majaelrayo o Roblelacasa, por ejemplo, en la falda oeste del pico Ocejón”.

Podemos decir que es una “Construcción rústica en Castilla que se usa para guardar el rebaño durante la noche”. En otras tierras se dice que tenada es una “Construcción rústica que en Asturias se usa para guardar la hierba para el rebaño”.

Podríamos utilizar igualmente la terminología aprisco que el diccionario de la RAE define “Aprisco (De apriscar) m. Paraje donde los pastores recogen el ganado para resguardarlo de la intemperie”.

En todo caso a nosotros ahora nos importa dejar claro que en esta tierra la terminología utilizada, desde que tenemos memoria, es tenada y esa es la que utilizaremos.

Nuestra forma de abordar el tema irá de lo general a lo particular, pues primeramente plantearemos las características generales de estas construcciones para luego descender a cada una de ellas y ver lo que presenta de particular y lo que deberemos situar dentro de lo general. Por ello veremos cuáles son los elementos propios de la construcción presentando el tipo de muros, portadas, vanos, estructura de madera, pies derechos, cubiertas y entramado sobre el que se apea la cubierta. Nos importa igualmente si en el entorno hay alguna construcción, como algún pequeño corral para averiguar la función que tenía.

Fig. 107.- Tenada de “la rastra”, muro a hueso o seco (F. Palomero).

3.2.4.1.- Los elementos sustentantes.

+ Los muros.

Los muros de las tenadas son a hueso o en seco, -ante todo en las zonas altas- o dicho de otra forma, se colocan piedra sobre piedra sin elemento ligante, barro o cal y canto. Se acomoda la estructura utilizando ripio para dar estabilidad y corregir los problemas que pudiera causar la irregularidad de la piedra. El mismo es tanto de pequeñas piedras como de cascotes de teja o elementos similares. La podemos denominar de “mampostería en seco”.1 A este tipo de muro Juan de Villanueva en su obra “Arte de la albañilería e instrucciones para los jóvenes que se dediquen a él…” lo de lo denomina “De las paredes de piedra seca” y los describe así “Con la piedra tosca, angulosa é irregular se hacen muros y paredes, que sin mezcla alguna se sostienen á sí mismas, y á veces sostienen tambien y resisten al peso de suelos y cubiertos, como se ve en muchos paises donde abunda este material2. Los muros que hemos podido ver en las tenadas de Carazo -en la zona de “la rastra”, “el enebral” y “los cerros”- son obras de mampostería en seco o a hueso o como dice Villanueva “piedra seca”. El aparejo es bastante irregular con una apariencia cercana a la habitual mampostería, con la diferencia que no se usa la argamasa sino que se coloca piedra sobre piedra y como indicábamos con anterioridad se corrigen las irregularidades y se cuidadosamente el muro utilizando el ripio (fig. 107 y 108). En general significan tanto las jambas de las portadas como los ángulos con sillares de mayor tamaño tanto que recuerdan las cadenas de sillares angulares. Hay en todo caso una notable similitud con las construcciones de mampostería que veremos en las otras tenadas.

 
Fig. 108.- Corrales de abajo, muro a hueso o seco (F. Palomero).

El método de trabajo es muy similar a lo que apunta Villanueva “Antes de mover las piedras, se ha de escoger el paramento que sea mas lineal y acomodado á la direccion de la pared, y el lecho de mejor asiento. Si las piedras ó aceras fuesen tan crecidas que sobrepujen el grueso de la pared, de cualquier modo que se coloquen, no habiendo de ser la pared demasiado tosca, y que nada importe el exceso, deben reducirse con la piquetilIa ó pico á un tamaño que corresponda al grueso de la pared; y entonces se colocarán de modo que sus paramentos no sobresalgan ni excedan de la cuerda atirantada de piquete á piquete, ó de mira á mira, quedando lo mas alineadas, y sus paramentos lo mas perpendiculares que sea posible; sentándolas bien sobre tierra sin dejar cojeos, y procurando que encima forme su lecho para que sienten sobre el de firme las piedras que han de suceder. Esto se logra calzándolas, y levantándolas con rajas de piedra y cantos menores que las van afirmando, trabando y consolidando de manera, que toda forma un cuerpo regular de pared 3. Cuando observamos la factura de la mayor parte de los muros vemos que responden a lo que acertadamente señala Villanueva. Los canteros que hicieron estas obras muy probablemente no habían leído al prohombre ilustrado pero siguen a pies juntillas lo que señala en su libro. Muy probablemente la tradición y los usos constructivos imperantes en esta tierra desde tiempo inmemorial, son los que aparecen en el escrito que hemos mencionado y por tanto los que trabajan no hacen otra cosa que caminar por donde se había hecho siempre.

En los ángulos, como hemos indicado más arriba, se utilizan sillares de mayor tamaño que forman una estructura cercana a las cadenas de sillares de un excelente trabajo (fig. 110).

Deberemos significar igualmente que en estas tenadas el tipo de piedra utilizado es la caliza que se localiza en las inmediaciones y que con poco trabajo se puede utilizar.

El otro tipo de muro que documentamos en las tenadas de Carazo es el que Juan de Villanueva denomina “De las paredes de piedra con barro” o de “mampostería con mezcla”. 4 Es un tipo de construcción que no difiere sustancialmente de la precedente en las formas y aparejo de los muros pero en el que las piedras no están colocadas a hueso sino que se utiliza argamasa de barro para ligar el conjunto (fig. 99), además de utilizar el ripio, cascotes y trozos de teja, para equilibrar los muros y darles mayor solidez (fig. 129 y 130). Este tipo de muro es el que vemos ante todo en las tenadas de “las eras de valles” (fig. 103, 148, 155, 156 y 159), “cabeza navarra” (fig. 109, 180 y 189), “la coraja” (fig. 197), “matauyales” (fig. 177), “cerro collado” (fig. 202) y en las del “pago de arriba” (fig. 110, 119, 122 y 123).

 
Fig. 109.- Tenada nº 1 de “cabeza navarra”, cara interior del muro de poniente (F. Palomero).

En este tipo de muro, la forma de hacerlo y el tratamiento que recibe no difiere del que Juan de Villanueva denomina como “De la mampostería de piedra tosca, con mezcla de cal y arena5. En todo caso el elemento ligante en esta ocasión es el barro que según señala el arquitecto ilustrado debe ser “…arcilloso y ligoso, y de calidad que se endurezca mucho, y atraiga poco la humedad…”6. Es una de las técnicas de construcción de muros que presentaban muchas de las casas vivideras que existentes en el casco urbano, aunque en algunas de ellas también se utilizó “el cal y canto”.

 
Fig. 110.- Tenada de “la cerca”, muro de poniente y cadena de sillares angulares (F. Palomero).

Otro de los elementos que debemos significar es el tratamiento de los ángulos de estas construcciones. En todos los edificios que hemos documentado vemos que hay cadenas de sillares (fig. 110) de cuidado trabajo. Algo similar vimos en las construcciones del casco urbano. En general el material pétreo utilizado en estas ocasiones es la piedra arenisca, obtenida en canteras cercanas, sobre todo para las tenadas del entorno de las “eras de valles”, amén de que todo indica que reutilizaron una parte importante de los restos de las construcciones de la villa romana y de las de Santa Eulalia.

Fig. 111.- Tenada nº 1 de “las eras de valles”, portada (F. Palomero).

Igualmente significan las jambas de las portadas (fig. 111) con grandes sillares para dar mayor estabilidad y solidez al muro. El trabajo es cuidado, bien pulimentado en la cara exterior y con plano inclinado hacia el interior para permitir encajar los goznes de las puertas y posibilitar su apertura (fig. 112).

Fig.- 112.- Tenada nº 2 de “cabeza navarra”, jamba izquierda de la portada (F. Palomero).

En algunas ocasiones el tipo de muro resultante se ajusta más al que podíamos denominar de aparejo de sillarejo, en ocasiones próximo al seudoisódomo como en alguna de las tenadas de las “eras de valles” (fig. 113).

Fig. 113.- Tenada nº 3 de “la eras de valles”, muro de sillarejo (F. Palomero).

Lo más habitual es que en las tenadas haya una portada de acceso. Presentan estructura adintelada, con dintel habitualmente de viga de “enebro” (sabina, “juniperus thurifera”, fig. 111 y 114) y jambas con grandes sillares (fig. 111). Lo más habitual es que las portadas se ubiquen en una de las fachadas menores -orientadas en sentido tanto norte-sur como este-oeste- pero también las podemos localizar en los muros de mayor desarrollo. Como hemos indicado con anterioridad las jambas tienen un tratamiento cuidado con sillares de mayor tamaño que los utilizados en los muros, a veces la jamba es de una sola pieza pero lo más habitual es que haya al menos tres. La labra de estos sillares es de la misma calidad y factura que las que vemos en los de las jambas de las casas. Todos tienen en la cara del intradós la habitual escuadra que acaba en forma ligeramente abocinada, para encajar la puerta y permitir su giro (fig. 112).

Fig. 114.- Tenada nº 3 de “las eras de valles”, portada orientada al sur (F. Palomero).

Las fachadas menores, donde se sitúa la portada de acceso presenta un remate en piñón (fig. 111) y es frecuente que entre el dintel y la cumbrera haya uno o varios ventanucos de estructura adintelada (fig. 111).

En la mayor parte de ellas aún se puede ver la existencia de unos pequeños ventanucos (fig. 109 y 268 a 270), respiraderos, de estructura adintelada y ligeramente abocinados hacia el interior. Dichos vanos recorren el edificio y los encontramos en todas las fachadas del mismo.

Las paredes sobre las que descarga la cubierta, las más largas, se remataban en la viga carrera (fig. 115 y 116) sobre la que cargaba gran parte del entramado de la cubierta.

El pie derecho.

Fig. 115.- Pie derecho de la tenada nº 4 de “las eras de valles” (F. Palomero).

La cubierta.

La mayor parte de las tenadas están en la actualidad en un estado lamentable, sólo conservan parte de los muros, casi arruinados del todo y rara vez vemos en pie los elementos de la estructura de madera que conformaba la cubierta. En todo caso tenemos testimonios de que los hubo, las basas (fig. 149, 183 y 203). Estas son de piedra, caliza o arenisca y tienen una botonera o agujero (fig. 249 y 250) que servía para encajar el pie en ella. En algún caso hemos constatado que la propia basa tenía la espiga para encajar en el pilar o pie derecho de madera de sabina, en esta población denominada enebro. El pie, lo conservamos en algunos casos, tiende a la forma cuadrada, es de enebro y habitualmente tenía en ambos extremos sendas espigas que se encajaban en la basa y en la viga de carrera. No tenían zapata en sentido estricto sino que su función la desempeñaba la viga transversal del armazón del tejado de parhilera (fig. 116). Dicho madero no solía llegar hasta las paredes, sino que superaba ligeramente el pie derecho.

 

1La leyenda del gráfico es: 1.- Basa; 2.-Pie derecho o pilar; 3.- Viga correa; 4.- Pares; 5.- Viga cumbrera; 6.- Viga carrera; 7.- Pendolón; 8.- Cabrio de la cubierta y 9.- Muro de mampostería o sillarejo.

Fig. 116.- Reconstrucción de la estructura de la tenada nº 4 de “las eras de valles” (F. Palomero) .

La mayor parte de las tenadas están en la actualidad en un estado lamentable, sólo conservan parte de los muros, casi arruinados del todo y rara vez vemos en pie los elementos de la estructura de madera que conformaba la cubierta. En todo caso tenemos testimonios de que los hubo, las basas (fig. 149, 183 y 203). Estas son de piedra, caliza o arenisca y tienen una botonera o agujero (fig. 249 y 250) que servía para encajar el pie en ella. En algún caso hemos constatado que la propia basa tenía la espiga para encajar en el pilar o pie derecho de madera de sabina, en esta población denominada enebro. El pie, lo conservamos en algunos casos, tiende a la forma cuadrada, es de enebro y habitualmente tenía en ambos extremos sendas espigas que se encajaban en la basa y en la viga de carrera. No tenían zapata en sentido estricto sino que su función la desempeñaba la viga transversal del armazón del tejado de parhilera (fig. 116). Dicho madero no solía llegar hasta las paredes, sino que superaba ligeramente el pie derecho.

En todos los casos, por las formas que presentan las fachadas de las caras menores y por los restos que aún quedan en pie, la cubierta fue a dos aguas con estructura de parhilera (fig. 245, 246 y 247). El conjunto de piezas de madera que unidas entre sí forman la cubierta que está formada por pares que se disponen oblicuamente desde la hilera hasta la solera o el muro (fig. 116). En la mayor parte de los casos hubo sendas vigas carrera que corrían paralelas a la hilera y cumbrera que descansaban sobre las dos filas o más de pies derechos (fig. 116, 245, 246). La cubierta en los muros largos descansaba habitualmente no directamente sobre el muro sino sobre la correspondiente viga carrera (fig. 116, 161 y 245).

En los casos que aún queda en pie parte de la cubierta constatamos la existencia de tirantes de carrera a la altura del pie derecho formando el clásico triángulo (fig. 116 y 246) que para dar mayor estabilidad y contrarrestar los empujes del armazón. Habitualmente la viga cumbrera es reforzada con el pendolón (fig. 116), colocado en sentido vertical y apoyado en el centro de la viga correa. Sobre los maderos de enebro que formaban parte de la armadura se colocaba el bálago -hierba o paja- y en él se asentaban las tejas de tipo árabe. De todas las construcciones que hemos analizado no hay indicio alguno que tuvieran otro atipo de cubierta que el que acabamos de presentar.

3.2.4.3.- Las compartimentaciones interiores.

La mayor parte de estas construcciones, por los datos que hemos podido documentar, eran espacios diáfanos, sin compartimentaciones estructurales. Pese a ello en algunas aún conservan pequeñas hiladas de lajas o piedras colocadas en sentido vertical (fig. 186 y 188) que están indicando que sí hubo alguna compartimentación en espacios separados.

Lo que nosotros hemos podido ver son divisiones para crear espacios diferenciados por medio de pequeñas estructuras de madera para separar a los corderos o a las ovejas parideras del resto del rebaño (fig. 186 y 188). También había espacios diferenciados para el ganado caprino que iba juntamente con el ovino.

3.2.4.4.- Otros elementos.

Salvo en casos muy contados no conservamos las puertas, habitualmente de dos hojas por el tamaño de las portadas (fig. 111 y 114). Las que aún quedan in situ tienen cerraduras metálicas, de herrero o ya en algún caso de factura industrial. Las puertas de dos hojas estaban completamente cerradas (fig. 114 y 252) excepto en la parte superior donde había barrotes de madera que permitían iluminar el interior con la luz del día (fig. 196, 199, 253, 275 y 276). Es el punto de iluminación de mayor entidad en toda la tenada pues, excepto en algunas de las eras de valles con ventanas de mayor tamaño, lo habitual es el vano de tipo aspillera como hemos indicado con anterioridad.

De todas las maneras las tenadas más señaladas se encuentran repartidas por la mayor parte del amplio término municipal, generalmente formando grupos y muy bien integradas en el entorno en el que se emplazan, que en unos casos es más abrupto (tenadas de la rastra) y en otros es más de ladera de suave inclinación (tenadas valles). Estas últimas especialmente ocupan una amplia superficie y la “fachada” de alguna de ellas, con su amplio portón y sus ventanucos flanqueándolo (fig. 111, 145 y 153) es muy característica. Ese elevado número nos habla de la importancia que tuvo la ganadería ovina en nuestra población.

A.- Tenadas del pago de arriba.

Fig. 117.- Foto área de las tenadas del pago de arriba (D.G. Catastro)

1.- Tenada del “tuerto”.

La historia de esta tenada, en la tradición oral, está ligada a una determinada persona pues lleva el apodo de “tenada del tuerto” (fig. 117). Algunos de sus más recientes propietarios han sido D. Martín Cibrián (el tuerto), Dª Nazaria Aragón, D. Félix Ontañón, Dª Pudenciana Cibrián y tal vez alguno más. El espacio interior estaba repartido entre diferentes propietarios y usuarios.

Esta tenada -de la que únicamente quedan en pie parte de los muros y las basas de los pies derechos (fig. 118)- se ubica en un amplio vallejo, bien protegida de los vientos del norte. Los muros son paredes de piedra ligada con barro. Los que aún queda en pie nos permite afirmar, por la factura de sus muros, que el trabajo responde a los usos habituales en este tipo de construcciones. Son muros de mampostería en los que utilizaron el barro como ligante y pequeños cascotes para equilibrar los tajos. Tiene dos portadas (fig. 118), una abierta hacia el sur y la otra hacia el este. En los ángulos encontramos cuidadas cadenas de sillares bien trabajados. El tipo de piedra utilizado es la arenisca aunque vemos alguna caliza en las basas.

Como hemos significado con anterioridad utilizan cadenas de sillares en los ángulos y jambas bien trabajadas en ambas portadas (fig. 119 y 120), preparadas para encajar los goznes de las puertas. Todo indica que la cubierta debió ser a dos aguas y su estructura de parhilera.

Fig. 118.- Croquis de la tenada del “tuerto” (F. Palomero).
Fig. 119.- Restos de la puerta principal, fachada este (F. Palomero).
Fig. 120.- Resto del muro meridional y portada pequeña (F. Palomero).

2.- Tenada de “la cerca”.

Esta tenada si sitúa al final de un vallejo -baja desde “el churrión”- que abre hacia los parajes que se denominan como “las arenas” y “la tejera” (fig. 117). Se ubica en una zona donde vemos que hubo una herrén, o finca cercada y de uso exclusivo de sus propietarios. El apelativo con que se conoce, como “tenada de la cerca” hace referencia a la propiedad cercada, uno de cuyos límites en la zona norte es la propia edificación. Los propietarios últimos fueron D. Domingo Carazo, “el tió mingarra”, y D. Simeón Terrazas “el tió Ierusalen”.

En la actualidad está en ruinas manteniéndose en pie una parte importante de los muros. Éstos son de piedra arenisca, forman una estructura de mampostería ligada con barro y cadenas de sillares en los ángulos (fig. 122 y 123). La única portada que hemos podido documentar es la que abre hacia el orto (fig. 121). Aunque en la actualidad no se puede ver la portada esta fue adintelada rematada con viga de sabina. De la cubierta no queda nada en pie pero aún se pueden ver “in situ” tres filas de basas (fig. 121). Lo anterior nos permite suponer que debió tener cubierta a dos aguas y muy probablemente con estructura de parhilera.

Fig. 121.- Croquis de la tenada de “la cerca” (F. Palomero).
Fig. 122.- Muro sur y ángulo sudeste con cadenas de sillares (F. Palomero).
Fig. 123.- Tenada de “la cerca” ángulo noroeste (F. Palomero).

B.- Tenada del Colmenar.

Fig. 124.- Foto aérea de las tenadas del “colmenar” y del “collado” (D.G. Catastro)

La tenada conocida como “del colmenar” (fig. 124), si sitúa en la zona alta de la primera majada, acercándose al pie de “peña palomera”. Es muy probable que el calificativo que lleva nos esté indicando que en la zona hubo desde tiempo inmemorial un colmenar, sin que tengamos constancia documental del mismo. Los propietarios del siglo XX de los que tenemos constancia fueron Dª Sebastiana Ontañón, D. Domingo Palomero, su hijo D. Julio Palomero, D. Félix Pinilla, D. Zacarías Pinilla y D. Benedicto Aragón. Una vez más constatamos que el espacio interior estaba dividido, con elementos de piedra o madera, significando las suertes o propiedades de cada uno de los que guardaban las ovejas en el lugar.

En la actualidad está completamente en ruinas quedando en pie únicamente parte de los muros. Los mismos son de piedra arenisca con alguna parte de caliza y parece que fueron de mampostería de barro (fig. 126). En el interior se aprecia que hubo un muro de separación en dos partes de tal forma que pese a que la estructura general es un todo interiormente estaba compartimentada en dos espacios diferentes (fig. 125). Cada uno de ellos tuvo su propia portada, una abierta hacia el orto y la otra al ocaso (fig. 125).

No conservamos nada de su cubierta pero las basas (fig. 127) que aún podemos ver indican la existencia de sendas filas de pies derechos, parece que fue a dos aguas y de estructura de parhilera. En los ángulos aún se pueden ver las cadenas de sillares.

Fig. 125.- Croquis de la tenada del “colmenar” (F. Palomero).
Fig. 126.- Tenada del colmenar, muro su en su estado actual (F. Palomero).
Fig. 127.- Tenada del colmenar, basas de apoyo de los pies derechos (F. Palomero).

C.- Tenadas del “collado”.

La información que hemos podido obtener apunta que en la zona hubo dos tenadas (fig. 124). De una de ellas conocemos quienes fueron sus propietarios y además se conservan los muros en aceptable buen estado para poder reconstruirla pero de la otra apenas queda el espacio, restos de algún muro y la memoria de que allí hubo una construcción. Por ello nos limitaremos a decir que en esta zona hubo dos recintos para guardar las ovejas pero que únicamente de uno podemos aportar datos arqueológicos.

La tenada del collado (“collao” según la acepción popular) se sitúa al pie de la subida hacia las llanas y camino que lleva hasta la cercana del colmenar (fig. 124). Los datos que hemos podido conocer indican que sus propietarios fueron D. Benito Aragón, D. Maximiliano Ontañón, Dª Benita Aragón, etc.

Del edificio que aún se conserva en pie son los muros en aceptable buen estado de conservación. La orientación de las caras menores es NE-SW (fig. 128). Las portadas se abren, la principal en la fachada sur (fig. 129 y 130) y otra de menor entidad en la este. Los muros son de mampostería de piedra con barro como ligante (fig. 129 y 130). La piedra es fundamentalmente arenisca pero también se utiliza alguna caliza. Significa las jambas de las portadas con grandes sillares y en los cuatro ángulos con cadenas de cuidada factura (fig. 129 y 130).

Los restos que han llegado hasta nosotros no nos permiten ver las basas de los pies derechos que a buen seguro los tuvo. Todo apunta que tuvo cubierta a dos aguas con la clásica estructura de parhilera. Estos extremos no los podemos demostrar porque no hay restos de la cubierta. Tampoco vemos vanos, como sucede en las precedentes.

 
Fig. 128.- Croquis de la tenada del “collado” (F. Palomero).
Fig. 129.-Tenada del collado, vista desde el ángulo sudeste (F. Palomero).
Fig. 130.-Tenada del collado, fachada sur (F. Palomero).

D.- Tenadas de la Hoz.

Fig. 131.- Foto aérea de las tenadas de la Hoz (D.G. Catastro)

1.- Tenada nº 1.

De esta tenada conocemos que algunos de los propietarios fueron Dª Sebastiana Ontañón, D. Nicolás Cámara, D. Onofre Cibrián… Es muy probable que como la mayor parte tuviera más propietarios, pero al no poderlo documentar con escritos nos deberemos quedar con la información obtenida de viva voz de los vecinos.

Está situada en la zona de la hoz, el mismo pie de Soncarazo, en la vertiente que mira hacia Valdepuertas (fig. 131). Los muros que aún quedan en pie indican que se realizaron con piedra caliza y con la técnica del mampuesto a hueso (fig. 133 y 134). No hemos documentado la existencia de basas por lo que en el croquis no figuran. Se significa los ángulos con sillares de mayor porte y la portada, abierta hacia el este (fig. 132). La orientación de las caras menores es del orto al ocaso. Es una obra que presenta un mayor desarrollo del muro sur (fig. 134) en relación con el opuesto (fig. 133) para salvar el desnivel e inclinación del terreno en que se ubica.

Suponemos que, como en casos precedentes, debió tener cubierta dos aguas y estructura de parhilera. Por lo anchura que presenta pudo tener dos hileras de pies derechos como elemento fundamental para sustentar la cubierta pero no sería extraño que sólo hubiera una central descargando sobre ella la viga cumbrera.

Fig. 132.- Croquis de la tenada de la hoz nº 1 (F. Palomero)
Fig. 133.- Tenada de la hoz nº 1, interior y muro norte (F. Palomero).
Fig. 134.- Tenada nº 1 de “la hoz”, muro meridional (F. Palomero).

2.- Tenada Nº 2.

La segunda de las tenadas situadas en la hoz está en las cercanías de la “fuente de la mora” (fig. 131). Los datos que hemos podido obtener indican que la misma fue propiedad de la familia de Dª Petronila Izquierdo y Dª Dionisia Cámara. La fábrica se sitúa al pie del monte y a la vera del río en una zona que podemos considerar llana.

De lo que fuera el conjunto únicamente quedan algunos restos: gran parte de los muros (fig. 136 y 137). Vemos en pie los muros, algunas de las basas sobre las descansaban los pies derechos y algunos restos de tejas. En todo caso lo que queda en pie nos posibilita conocer que la factura de los muros fue de mampostería realizada a hueso, aunque alguna reforma posterior introdujo el cal y canto en algunas partes del muro occidental. Aún se puede constatar que en las esquinas hay cadenas de sillares de buen trabajo y bien pulimentados en sus caras exteriores (fig. 136). La portada tuvo igualmente jambas con sillares de gran tamaño, bien trabajados y realizados con el habitual ángulo en el interior para que la puerta pudiera girar con facilidad.

Todo indica que tuvo cubierta de parhilera que descargaba sobre doble fila de pies derechos y parece que la estructura debía responder a lo que es habitual en estos casos (fig. 135).

Fig. 135.- Croquis de la tenada de la hoz nº 2 (F. Palomero).
Fig. 136.- Tenada nº 2 de la hoz, vista de la portada de acceso (F. Palomero).
Fig. 137.- Tenada nº 2 de la hoz, pared del fondo este /F. Palomero).

E.- Tenadas de la Rastra (fig. 138).

1.- Tenada de la “rastra” 12.

Según la información que hemos podido recabar hubo sendas tenadas, muy próximas una a otra, en la zona cercana al cintajo. De las mismas no quedan restos o no hemos podido localizarlos.

2.- Tenada de “la rastra” 3.

La segunda de las tenadas de la Rastra, se sitúa en una zona relativamente llana y a tenor de la información que hemos podido recabar varios de sus propietarios fueron Félix Ontañón, Nazaria Aragón y Simón Ontañón. La misma ha tenido uso hasta tiempos relativamente recientes.

Esta tercera tenada, conocida como “la tenada de la rastra” (fig. 138), parece haber sido construida en las primeras décadas del siglo XX. En la actualidad el conjunto está en ruinas. Pese a ello se conservan casi intactos los muros, en algunas partes la cubierta está casi completa pero en su gran mayoría se ha venido abajo pero aún está. La orientación de la fábrica es, con algunos matices E-W (fig. 139), dependiendo de la inclinación del terreno (fig. 140). Los muros son de mampostería a hueso, con sillares de mayor porte en los ángulos y en la portada que es de estructura adintelada (fig. 140 y 141). El dintel, como debía ser en la mayor parte de los casos, es de madera de sabina (enebro como se expresan en Carazo). Se conserva en pie la estructura de la portada este.

Como indicábamos con anterioridad la orientación es E–W, pues las fachadas menores (fig. 141) tienen dicha orientación. En ambas se abre la correspondiente portada que da acceso a un pequeño aprisco definido mediante postes y luego una alambrada de factura reciente. Los muros de las fachadas norte y sur, de mayor longitud que los de las otras dos, tienen un desarrollo en altura claramente diferenciado. El del septentrión apenas llega a alcanzar el metro mientras que el meridional tiene más de dos (fig. 107). La razón de esta diferencia de altura está motivada por la inclinación del terreno. La cubierta fue a dos aguas por los restos hemos podido ver, su estructura de parhilera, con doble fila de pies derechos y con viga carrera en los muros perimetrales, además de la del par.

Un hecho sorprendente en esta fábrica es la calidad de los muros (fig. 140 y 141) por lo bien colocadas que están las diferentes piedras y la cuidadosa elección de los sillares angulares y de las portadas. Es una de las fábricas de mayor calidad de todas las que se realizan a hueso. Su factura responde en toda la extensión de la palabra al arquetipo que nos presenta Juan de Villanueva. El material utilizado en la confección de los muros es la piedra caliza, muy probablemente recogida en el entorno.

Fig. 138.- Foto aérea de las tenadas de la Rastra (D.G. Catastro)
Fig. 139.- Croquis de la tenada de “la rastra” (F. Palomero).
Fig. 140.- Tenada de la rastra, vista desde el nordeste (F. Palomero).
Fig. 141.- Tenada de la rastra, fachada este con portada principal (F. Palomero).

F.- Tenadas de “eras de valles”.

Fig. 142.- Foto aérea de las tenadas de las “eras de valles” (D.G. Catastro)

El conjunto de tenadas de mayor significación del municipio de Carazo es el que localizamos en el paraje conocido como “las eras de valles” (fig. 12 y 142). Su situación, a caballo de dos zonas de cultivo -la de las Vegas y la del pago de Mocinos- nos está indicando que es una zona de especial importancia para la ganadería. Es muy probable que una parte importante del material constructivo, la piedra arenisca, proceda de una cantera situada en la zona de “matauyales” y otra de la villa romana de “la serna” y del poblado altomedieval de Santa Eulalia o San Miguel de Montesinos.

Es importante el número de construcciones, nosotros hemos contabilizado ocho tenadas, pero no lo es menos los elementos asociados a ellas, como son los prados, claramente delimitados con grandes sillares de arenisca, sobre todo los que dan a la “vega encimera” y al arroyo de “reajal” o “San Andrés” (fig. 12 y 143).

Fig. 143.- Croquis del conjunto de tenadas de las “eras de valles” (F. Palomero).

Tenemos la sospecha que en algún momento aquí pudo haber un núcleo de población, del que no queda memoria, pero bien podría explicar la cantidad de tenadas en la zona y también la calidad de su construcción. En todo caso tiene una situación muy estratégica por la ubicación en relación con las zonas de pastos del ganado y por la abundancia de agua en el entorno.

Nosotros hemos contabilizado ocho construcciones de tenadas, con diferente grado de conservación, muy probablemente en algún momento hubo más. Lo último es una mera suposición basada en algunos indicios existentes sin que podamos ir más allá

1.- Tenada nº 1.

Esta primera tenada, a tenor de la numeración por la que hemos optado, tuvo como propietario principal a Ángel Pinilla, en el argot popular el “treceperras” o “angelón”. Es la situada en la zona más próxima a la fuente del “cubillo de valles”.

En la actualidad conserva una parte de sus muros, algunos se han venido abajo, mientras que la cubierta se ha venido abajo. Los muros son de piedra arenisca, con aparejo de mampuesto y realizados siguiendo la técnica de la mampostería de barro. Es una de las pocas que conservan en bastante buen estado las fachadas menores, en esta ocasión con orientación N-S, lo que nos ha permitido, a partir de ella, suponer como pudieron ser las de aquellas que no conservamos.

Los muros se levantan siguiendo la técnica del mampuesto de barro. Pese a ello algunos lienzos del muro los podríamos calificar -por el tipo de aparejo que presentan- de sillarejo. Las fachadas norte (fig. 148) y sur (fig. 145) se rematan en piñón, con bastante mayor altura en el centro que en los extremos, expresión clara de que están preparadas para sustentar una cubierta a dos aguas. En la fachada norte se abren varios ventanucos, algunos de mayor porte, por su forma indica que son relativamente recientes (fig. 148). Pese a pequeños cambios se puede decir que conserva la estructura y formas originales.

Nos importa en esta ocasión la fachada meridional pues en ella se abre la portada (fig. 145). Es importante el remate con sendos ventanucos, con una clara finalidad de iluminar el interior pero dan una seña de identidad y personalidad a la obra. Es un trabajo bien proporcionado y expresión por sí mismo de la calidad y bondad de quienes la diseñan y ejecutan. Estamos ante una fachada armónica que podríamos colocar perfectamente dentro de la arquitectura de los estilos.

El muro, claramente de mampuesto de barro, presenta aparejo de sillarejo realizado con piedra arenisca. Una vez más debemos dejar constancia del excelente trabajo de las cadenas de sillares de los ángulos y el de los monumentales sillares de las jambas de la portada (fig. 145 y 148). Presentan la cara exterior, sur, perfectamente trabajada, mientras que la exterior que da a la zona de la luz de la portada recibe un tratamiento diferente y tiene el habitual ángulo recto para encojar y girar la puerta. Responde en su factura a lo que vimos en las portadas de la mayor parte de las casas del casco urbano. La portada presenta estructura adintelada y el dintel, como es habitual, es de madera de enebro que aún conservamos (fig. 145). Como señalábamos con anterioridad encima se abren sendos ventanucos de estructura cuadrangular que dan un tono especial a esta fachada.

No conservamos la cubierta (fig. 147). Los muros más largos, sobre los que descargaban los aleros, en gran parte han desaparecido y por tanto no vemos las vigas carrera que los recorrían. Pese a haber perdido la cubierta, por la estructura de las fachadas norte y sur (fig. 146), hemos de suponer que fue a dos aguas. Muy probablemente la estructura de la misma por la habitual parhilera, pues eso es lo que nos están indicando las dos filas de basas (fig. 144) sobre las que se asentaron los correspondientes pies derechos (fig. 144). En todo caso aún quedan in situ restos de la estructura de madera de la cubierta y algún pie derecho descolocado. Igualmente conservamos varias basas (fig. 149).

Fig. 144.- Tenada nº 1 de “las eras de valles”, croquis (F. Palomero).
Fig. 145.- Tenada nº 1 eras de valles, portada (F. Palomero).
Fig. 146.- Tenada nº 1 de las eras de valles, estado actual (F. Palomero).
Fig. 147.- Tenada nº 1 de “las eras de valles”, vista desde el nordeste (F. Palomero).
Fig. 148.- Tenada nº 1 de “las eras de valles”, vista de la fachada norte F. Palomero). Fig. 149.- Tenada nº 1 de “las eras de valles”, basa de pie derecho (F. Palomero).

2.- Tenada nº 2.

De esta tenada no tenemos noticia alguna de quienes fueran los propietarios. El croquis que hemos realizado de la misma es la expresión de los escasos restos de los muros que aún quedan en pie. Las piedras que delimitan la superficie de esta construcción son todas areniscas y de trabajado bastante cuidado. Los pequeños muros, son algo más que los cimientos, apuntan que debieron realizarse siguiendo la técnica de la mampostería de barro y con un aparejo cercano al sillarejo.

Como se puede ver en el croquis (fig. 150) todo indica que debió tener cubierta a dos aguas por la doble fila de basas que aún se conserva y con estructura de parhilera. Los restos que conservamos indican que hubo dos ámbitos claramente diferenciados, tal vez fueran dos tenadas. La orientación es N-S, pues así lo indican las fachadas menores, la portada parece que estuvo en la meridional. El muro de poniente corre en paralelo y es común con el de un recinto murado que parece un prado de notables dimensiones (fig. 151).

Fig. 149.- Tenada nº 1 de “las eras de valles”, basa de pie derecho (F. Palomero).
Fig. 151.- Tenada nº 2º de “las eras de valles”, restos (F. Palomero).

3.- Tenada nº 3.

Esta tenada situada en paralelo con la precedente, sin muros comunes, tuvo como propietario más importante a Dª Juana Cámara, alias “la melliza”.

Como sucede en las precedentes, su estado de conservación no es bueno, está en ruinas, pero pese a ello la mayor parte de los muros están en pie y una parte importante de la cubierta, lo que nos permite valorar esta faceta desde su realidad material. La orientación, como en las precedentes, es N-S (fig. 152), siendo las fachadas menores las de esa dirección. La portada la abre al mediodía.

La técnica constructiva de los muros es la del mampuesto de barro con aparejo cercano al sillarejo (fig. 155 y 156), al menos una parte importante de los mismos. En esta ocasión la fachada sur ha desaparecido en gran medida, pero aún conservamos parte de la portada (fig. 153), que por su factura y formas está muy cercana a la que vimos en la tenada primera.

Los muros más largos, los orientados al este y al oeste, se puede decir que están casi completamente en pie, salvo un pequeño tramo del este, lo que nos permite conocer de primera mano la técnica constructiva, claramente de mampuesto de barro y aparejo de sillarejo como señalamos con anterioridad (fig. 155 y 156). Pero los mismos nos aportan otra importante información cuál es la colocación en ellos de la viga carrera sobre la que se apean los cabríos de la estructura del tejado.

Aún conservamos en pie una parte importante de la cubierta que es a dos aguas, de estructura de parhilera (fig. 154), con los habituales pies derechos apeados sobre basas de piedra (fig. 154). La estructura de la cubierta responde a la habitual de parhilera, con la habitual estructura triangular y refuerzo de la viga cumbrera con un elementovertical, el pendolón colocado en el centro. El entramado de cabríos, algunos tablones y ramaje del tejado aún lo podemos ver (fig. 154), así como la capa de bálago sobre la que asientan las tejas curvas de tipo árabe.

La fachada norte (fig. 156) nos permite conocer la estructura de la misma y suponer como pudieron ser la de aquellas que no conservamos. En la misma se abren los habituales ventanucos de estructura adintelada para la ventilación. Junto a ellos vemos otro de mayor tamaña y de factura mucho más reciente.

Fig. 152.- Tenada nº 3 de “las eras de valles”, croquis.
Fig. 153.- Tenada nº 3 de “las eras de valles”, fachada sur y portada.
Fig. 154.- Tenada nº 3 de “las eras de valles”, vista de la estructura interior.
Fig. 155.- Tenada nº 3 de “las eras de valles”, muro de sillarejo, viga carrera y barro y elementos del muro (F. Palomero).
Fig. 156.- Tenada nº 3 de “las eras de valles”, fachada norte.

4.- Tenada nº 4.

La cuarta de las tenadas está casi alineada con las dos precedentes, es la última de las cuatro más próximas situadas en el entorno de los antiguos prados o apriscos que aún conservan parte de los muros que los delimitaban (fig. 142). Esta construcción presentaba, como la mayor parte de estas construcciones una propiedad compartida entre varios dueños. Significamos a los siguientes D. Eugenio Palacios, D. Julio Palomero, Dª Sebastiana Ontañón, D. Félix Pinilla, D. Alejandro Palomero, D. Pablo Izquierdo. Ha recibido el nombre de “tenada concejo”.

La construcción conserva una parte muy significativa de su estructura en pie. Los muros, tanto los de las fachadas menores -situadas al norte y al sur- como los de mayor desarrollo en longitud -este y oeste- presentan la técnica constructiva propia de la mampostería en barro con aparejo de sillarejo. A lo largo de los muros mayores vemos que se colocan varias vigas carrera sobre las que descargan los cabríos del tejado (fig. 161). El desarrollo en altura de dichas paredes sobrepasa los dos metros mientras que en las de las fachadas menores -rematadas en piñón (fig. 160)- superan los tres. En los ángulos vemos cadenas de sillares (fig. 159 y 160), lo mismo que sucede en lo que aún queda de la portada abierta en la fachada meridional.

La cubierta es a dos aguas con una estructura de parhilera que descarga sobre las vigas carrera y los pares correspondientes con los pies derechos (fig. 158). Se ve afirmada por el triángulo formado entre los pares, el pendolón y la viga cumbrera (fig. 158). Se completa la cubierta con un cuidado entramado de pequeñas vigas -cabrios y tablones- sobre los que se coloca una capa de bálago y encima asientan las tejas que, como en los casos precedentes, son de tipo árabe y de las tejeras locales.

Entre esta tenada y la precedente vemos un espacio cerrado por un pequeño muro en ambos extremos que bien pudiera ser un aprisco. El espacio de esta tenada, como sucede en las precedentes, es diáfano y no presenta compartimentación alguna estructural. Como indicamos más arriba sí hubo dicha división, pero la misma se hacía mediante talanqueras8, pequeñas barreras de madera o con pequeñas estructuras de piedra que definían los espacios de cada uno de los propietarios.

Fig. 157.- Tenada nº 4 de las “eras de valles”, croquis (F. Palomero).
Fig. 158.- Tenada nº 4 de las “eras de valles”, estructura de la cubierta (F. Palomero).
Fig. 159.- Tenada nº 4 de “las eras de valles”, vista del muro oeste en su estado actual (F. Palomero).
Fig. 160.- Vista de la fachada norte de la tenada nº 4 de “las eras de valles” (F. Palomero).
Fig. 161.- Tena nº 4 de las “eras de valles”, muro y apeo del cubierta (F. Palomero).

5.- Tenada 5ª.

Esta quinta tenada de las Eras de Valles está ubicada en una zona muy próxima al arroyo de San Andrés y a las fincas de “la vega encimera”. Los propietarios más recientes han sido D. Félix Ontañón, Victoriano Palomero, Bonifacio Cibrián… y con posterioridad sus descendientes, habiéndola utilizado, en tiempos recientes Simón Ontañón y sus herederos.

Esta construcción se encuentra en la actualidad casi en su totalidad en pie, salvo una parte muy pequeña (fig. 162 y 163). La estructura y formas constructivas que presenta en la actualidad son el fruto de una reconstrucción reciente. Sobre una base de muro de piedra de mampuesto con cemento se han colocado bloques de cemento alcanzando los muros norte y sur, los más largos, una altura cercana a los tres metros. La cubierta sigue siendo a dos aguas pero la estructura que la sustenta es de hierro, obra de la década de los ochenta del siglo XX. Obra sendas portadas, una de gran desarrollo al este, apta para el acceso de tractores y una segunda al sur algo menor.

Fig. 162.- Eras de Valles, croquis de la tenada 5ª (F. Palomero).
Fig. 163.- Vista de la de la tenada 5ª desde el sudoeste (F. Palomero).

6.- Tenada 6ª.

Lo que queda de lo fuera esta construcción -apenas vemos parte de los cimientos (fig. 164 y 165)- nos permite situarla en el espacio. Se aparta bastante de las precedentes y se levantó casi en la zona más elevada de la loma de las Eras de Valles. En esta zona estuvo situado lo que se conocía como “salegar de las eras de valles”.

Poco más podemos decir de la misma salvo constatar que existió y conocer el lugar dónde estuvo situada, pues nos quedan restos mínimos que no permitan mayores precisiones o descripciones.

Fig. 164.- Tenada nº 6 de “las eras de valles”, croquis (F. Palomero).
Fig. 165.- Vista del lugar donde se ubicó la tenada (F. Palomero).

7.- Tenada 7ª.

Esta tenada está situada en un terreno con ligero plano inclinado y orientación noreste-sudoeste. No conocemos ni tenemos noticias documentadas de quienes fueron sus propietarios.

La construcción se levanta en una zona en que el terreno está ligeramente en cuesta (fig. 167 y 168). Su orientación, en las caras menores es N-S (fig. 166), con algunos matices. Los muros que aún quedan en pie indican que fueron de mampuesto con barro y aparejo próximo al sillarejo (fig. 167 y 168). Aún conservamos parte de la portada -abierta en el muro oeste- con jambas que presentan sillares muy cuidados y pulimentados en su cara exterior, con ángulo en la zona de la luz para posibilitar que corriera adecuadamente la puerta. En los ángulos aún vemos las cadenas de sillares. Hemos de suponer que tuviera cubierta a dos aguas y estructura de parhilera. No quedan restos de las basas de los pies derechos.

Fig. 166.- Tenada nº 7 de “las eras de valles, croquis (F. Palomero).
Fig. 167.- Tenada nº 7 de “las eras de valles, vista del espacio (F. Palomero).
Fig. 168.- Tenada nº 7 de “las eras de valles”, vista del espacio (F. Palomero).

8.- Tenada 8ª.

Esta tenada se encuentra situada a mano izquierda del camino que viene de “prao gordo”, junto al camino que conduce hacia la tenada de “matauyales”. Uno de los propietarios fue Onofre Cibrián.

La orientación de las fachadas menores es N–S (fig. 169) y las otras dos E–O (fig. 169). De lo que fuera la construcción -de dimensiones algo menores que las precedentes- podemos decir que sus muros fueron de mampuesto de barro y aparejo de sillarejo (fig. 170 y 171). La portada, ha desaparecido, parece que abría al norte. Aún conservamos una de sus jambas que nos permite conocer la calidadel trabajo y hacia donde se abría la puerta (fig. 172). Sí hemos podido constatar que en los ángulos hubo cadenas de sillares (fig. 170 y 171). Suponemos que la cubierta fue a dos aguas y la estructura de la misma de parhilera pero no hemos podido documentar ninguna de las basas sobre las que debían apear los pies derechos.

Asociada a esta tenada tenemos un amplio corral del que aún se conserva una parte importante de los muros que lo definían pero su mal estado de conservación no nos permite describirlo.

Fig. 169.-Tenada nº 8 de “las eras de valles”, croquis.
Fig. 170.- Tenada nº 8 de “las eras de valles, vista de la portada de acceso (F. Palomero).
Fig. 171.- Tenada nº 8 de “las eras de valles, vista desde el noroeste (F. Palomero).
Fig. 172.- Tenada nº 8 de “las eras de valles, vista de sillares de la portada (F. Palomero).

G.- Tenada de Matauyales.

Fig. 173.- Foto aérea de la tenada de Matauyales (D.G. Catastro)

Desde el camino que viene desde “prau gordo” tomaremos en “las eras de valles” el que se desviaba a mano derecha. Seguiremos a media ladera y a algo más de seiscientos metros se encuentra la tenada (fig. 173). El lugar tiene una notable pendiente pero los datos arqueológicos indican que ha habido un importante desmonte y en parte se ha allanado. El espacio en que se encuentra está al pie del robledal de valles mirando hacia “la serna”. En las cercanías se encuentra una de las canteras más importantes de la zona y varios herrenes o herrenales que están delimitadas con los correspondientes sillares de notables dimensiones.

Por los datos que hemos podido recabar sabemos que los propietarios fueron Zacarías Pinilla, Mateo Cámara y Agustín Palomero entre otros pasando con posterioridad a Moisés Pinilla y más tarde a los descendientes de este último.

La tenada de “matauyales” es una de las que perdido la cubierta (fig. 175) pero los muros se conservan en gran parte. La orientación en sus caras menores presenta una pequeña desviación noreste-sudoeste que viene condicionada por el terreno en que se levanta. Los muros tienen la habitual fábrica con la técnica del mampuesto de barro y un aparejo que en algunas partes es claramente sillarejo (fig. 175). Los muros de la facha norte (fig. 176) no llegan al metro de altura mientras que los de la opuesta se aproximan a los dos (fig. 176 y 177). La razón de esa diferencia hay que buscarla en la inclinación que presenta el terreno en que se levanta. Quién realizó la obra supo aprovechar con acierto esa realidad.

En los ángulos vemos las habituales cadenas de sillares (fig. 175 y 177). Las portadas, una abierta en el muro norte (fig. 176) -casi en el ángulo NW, de pequeño porte- y otra en la fachada este (fig. 175), presentan jambas con sillares de cuidado trabajo y acomodado en la parte interior para encajar las puertas. En la segunda vemos que hubo doble puerta, apropiada para entrar en ella con el carro y las vacas sacando o llevando materiales. La cubierta es a dos aguas, su estructura de parhilera con el clásico triángulo de refuerzo, las vigas carreras en los muros mayores, sendas filas de pies derechos y una viga en el centro de cada triángulo de refuerzo de la viga cumbrera.

En esta ocasión aún se pueden ver parte de las separaciones realizadas mediante las talanqueras de madera y pesebreras colocadas en las paredes de mayor longitud.

Fig. 174.- Croquis de la tenada de “matauyales” (F. Palomero).
Fig. 175.- Vista de la tenada de “matauyales” desde el nordeste (F. Palomero).
Fig. 176.- Tenada de “matauyales”, puerta abierta en el muro norte (F´. Palomero).
Fig. 177.- Tenada de “matauyales”, cadena de sillares angulares y muro de mampostería (F. Palomero).

H.- Tenadas de Cabeza Navarra.

Fig. 178.- Foto aérea de las tenadas de “cabeza navarra” (D.G. Catastro).

En este altozano, en la vertiente sureste donde clarea el bosque de robles, el “quercus pyrenaica” o melojo. Las tenadas están situadas en una zona relativamente llana lo que facilitó la construcción. Están bastante próxima una de otra pero con un importante desnivel entre una y otra (fig. 178). El acceso a ambas se hacía a través de un camino de carros que partía desde el salegar de la encina. En la actualidad, al estar en desuso está en algunas partes casi desaparecido pero aún queda claramente señalado en muchos tramos. En plano del catastro está claramente señalado el susodicho camino de acceso.

1.- Tenada nº 1 de “cabeza navarra”.

La primera de las tenadas, la nº 1, es la que se ubica en una zona relativamente llana y donde concluye parte del camino que llega desde el salegar de la encina (fig. 178). A tenor de la información que hemos podido obtener algunos de los propietarios fueron Máximo Palomero, Pedro Camarero, Maximiano Cámara y algunos más de los que no conocemos los nombres. La construcción aprovecha una pequeña vaguada, sin vegetación, que sirve de comunicación entre dos vertientes del montículo de “cabeza navarra”.

El conjunto está en total ruina quedando únicamente en pie parte de los muros, sobre todo los de las fachadas menores (fig. 180). Por los datos que hemos podido documentar “in situ” se trataba de una construcción de planta rectangular (fig. 179), con muros de sillarejo ligados con barro (fig. 180) y cadenas de sillares en los cuatro ángulos (fig. 181). El conjunto parece, como sucede en la mayor parte de este tipo de construcciones del término de Carazo, que tuvo cubierta a dos aguas con estructura de parhilera. No conservamos la fachada situada hacia el sureste, donde estaba la portada de acceso, pero aún podemos ver una de sus jambas. Parece que la misma se remataba en forma triangular y bien pudo tener sendas ventanas colocadas sobre el dintel que era de madera de sabina y aún se conserva “in situ”. La fachada opuesta, la del norte (fig. 180) -ligeramente orientada en sentido NW- es la que conservamos mejor por lo que a partir de ellas podemos concluir que hubo cubierta a dos aguas. La misma es de sillarejo y como ligante utiliza el barro y vemos que en los ángulos hay cadenas de sillares.

Por los restos que han llegado hasta nosotros, conservamos varias basas (fig. 182 y 183), sabemos que la cubierta se apeaba sobre pies derechos. Igualmente hay testimonios, algunas lajas de piedra, que señalaban las parcelas de cada uno de los propietarios. No sabemos cómo eran dichas divisiones pero muy probablemente sobre las lajas se colocarían estructura de madera, las habituales talanqueras.

Lo que queda en pie de los muros, sobre todo las fachadas norte y sur, pero también el arranque de los lados mayores del rectángulo -fachadas este y oeste- indican el tipo de fábrica presentaba notable calidad, con un grosor cercano a los setenta centímetros y con aparejo de sillarejo. El material utilizado en la construcción es la piedra arenisca y el ligante el barro. La cubierta debía tener estructura de madera, pues aún conservamos las vigas tanto de la cumbrera como de los pies derechos (fig. 180) y algunas del entramado del tejado. Igualmente aún se puede ver la imponente viga de sabina que sirvió de dintel en la portada.

Fig. 179.- Tenada nº 1 de “cabeza navarra”, croquis (F. Palomero).
Fig. 180.- Tenada nº 1 de “cabeza navarra”, vista del interior en su estado actual (F. Palomero).
Fig. 181.- Tenada nº 1 de “cabeza navarra”, cadena de sillares ángulo sudoeste (F. Palomero).
Fig. 182.- Tenada nº 1 de “cabeza navarra”, pie derecho con espiga y basa (F. Palomero).
Fig. 183.- Tenada nº 1 de “cabeza navarra”, basa con orificio para encajar el pie derecho (F. Palomero).

2.- Tenada nº 2 de “cabeza navarra”.

La segunda de las tenadas, la nº 2, es la que se ubica en una zona ya en pendiente que mira hacia el mediodía (fig. 178). Un camino aún evidente la comunica con la precedente que por las características que aún presenta por el mismo discurieron los carros. A tenor de la información que hemos podido obtener algunos de los propietarios fueron Gregorio Cibrián, Benito Aragón, Jacinto Carazo, Miximiliano Ontañón y otros que no hemos podido averiguar sus nombres. La construcción aprovecha un claro en el bosque de “quercus pyrenaica” en donde se aprecia que el terreno ha sido previamente aplanado.

El conjunto está en total ruina quedando únicamente en pie parte de los muros (fig. 186). La parte más significativa que queda en pie es la fachada oeste y algo de la meridonal. Por los datos que hemos podido documentar “in situ” se trataba de una construcción de planta rectangular (fig. 184), con muros de sillarejo ligados con barro (fig. 185, 187 a 189) y cadenas de sillares en los cuatro ángulos (fig. 187 y 190). El conjunto parece, como sucede en la mayor parte de este tipo de construcciones del término de Carazo, que tuvo cubierta a dos aguas con estructura de parhilera. No conservamos la fachada orientada al E pero si la opuesta -ambas son de menor longitud- por la que podemos intuir qué características tuvo la cubierta. Todo indica que fue a dos aguas y tal vez con estructura de parhilera, apeada sobre doble fila de pies derechos y muros sobre los que corría la viga carrera que servía de apeo a los cabríos. La portada abría al mediodía y estaba ubicada en el centro de una de las fachadas de mayor desarrollo (fig. 185). Por los restos que ha llegado hasta nosotros podemos suponer que las jambas de la portada respondían a los usos habituales en las edificaciones de la zona (fig. 185). Las puertas -bien podrían ser dos hojas- se abrían hacia el interior y se podían girar a partir de los correspondientes goznes de los que aún tenemos testimonio. La orientación de esta tenada es E-W en las fachadas menores y N-S en las de mayor desarrollo.

El material constructivo es la piedra arenisca, los muros que aún conservamos indican que su aparejo se aproximaba al sillarejo con cadenas de sillares en los ángulos. La portada estaba muy señalada estructuralmente con cuidadas jambas con grandes sillares perfectamente trabajados para que las hojas de la puerta pudieran girar con facilidad (fig. 185). Por los restos que han llegado hasta nosotros, conservamos doble hilera basas, sabemos que la cubierta se apeaba sobre pies derechos. Igualmente hay testimonios, lajas de piedra arenisca (fig. 186 y 188), que señalan las parcelas de cada uno de los propietarios. No sabemos cómo eran dichas divisiones pero muy probablemente sobre dichas piedras se pudo colocar la estructura de madera, las habituales talanqueras.

Lo que queda en pie de los muros, sobre todo la fachada oeste, parte de la sur y norte (fig. 185, 186, 188 y 189), pero también el arranque de los lados mayores del rectángulo -fachadas norte y sur- indican el tipo de fábrica presentaba notable calidad, con un grosor cercano a los setenta centímetros y con aparejo de sillarejo. El material utilizado en la construcción es la piedra como ya hemos señalado era la arenisca y el ligante el barro. La cubierta debía tener estructura de madera pues así lo indican las dos filas de basas (fig. 186 y 188) que recorren la construcción de este a oeste. En todo caso en esta ocasión, aunque escaso, hay algunos restos de vigas y cabríos de los fuera la cubierta de armazón de madera que a buen seguro tuvo. Sabemos que en algunas de las fachadas se abrió alguna ventana, de tipos aspillera y estructura adintelada (fig. 189). Esta tipología de vano es la habitual.

Fig. 184.- Tenada nº 2 de “cabeza navarra”, croquis (F. Palomero).
Fig. 185.- Tenada nº 2 de “cabeza navarra”, portada y muro sur (F. Palomero).
Fig. 186.- Tenada nº 2 de “cabeza navarra”, vista del interior en su estado actual (F. Palomero).
Fig. 187.- Tenada nº 2 de “cabeza navarra”, fachada meridional, zona sudeste (F. Palomero). Fig. 188.- Tenada nº 2 de “cabeza navarra”, basas y lajas divisorias de propiedades (F. Palomero).
Fig. 189.- Tenada nº 2 de “cabeza navarra”, vista interior del muro de poniente y vano abocinado (F. Palomero).
Fig. 190.- Tenada nº 2 de “cabeza navarra”, cadena de sillares del ángulo noreste (F. Palomero).

I.- Tenada de “la coraja”.

El acceso a esta tenada lo hacemos desde las eras de valles siguiendo el camino que, desde las mismas luego de acceder a una zona elevada completamente llana una vez atravesada nos llevará a un pequeño vallecillo (fig. 191 y 192). A mitad de la ladera se sitúa la conocida como tenada de “la coraja”. Los datos que hemos podido recabar indican que los propietarios en el siglo XX fueron Anastasio Palacios, Petronila Izquierdo, Dionisia Cámara y otros.

La planta que podemos reconstruir a partir de lo que ha llegado hasta nosotros es claramente rectangular (fig. 193). Las fachadas este (fig. 194) y oeste tienen claramente mayor desarrollo que las otras dos restantes (fig. 195 y 197). Los muros presentan factura de piedra, ligados con barro y aparejo cercano al sillarejo. En los ángulos (fig. 194 y 197) vemos las habituales cadenas de sillares de cuidada factura. Queda en pie un vano en la este que presenta un ligero abocinamiento y su estructura es adintelada. La portada se abre en la fachada meridional (fig. 194, 197 y 198), presenta estructura adintelada con dintel de gruesas y cuidadas vigas de sabina. Las jambas presentan grandes sillares que abren en derrame hacia el interior para acoger las puertas. El remate de esta fachada lo hace en ángulo de unos cuarenta grados. La altura de esta fachada va disminuyendo en altura hasta los ángulos oeste y este (fig. 194 y 196), lo que nos permite aventurar con gran seguridad que la cubierta de este edificio fue a dos aguas.

No queda en pie sino la mayor parte de la fachada sur, una parte de la oeste, la este casi entera y el arranque de la septentrional. En todo caso aún vemos parte de las basas sobre las se asentaron los pies derechos sobre los que descargada la cubierta. Por los restos de vigas, cabrios y pies derechos que aún se pueden ver “in situ” deducimos que la cubierta tuvo el característico entramado de madera, no sustancialmente distinto del que hemos podido ver en las tenadas nº 3 y 4 de “las eras de valles”. En esta ocasión conservan las dos hojas de la puerta de acceso lo que nos permite conocer las forma que solían presenta la mayor parte de ellas y sobre todo el sistema de engarce en la portada, con goznes de madera en la parte superior y metálicos en la inferior. Igualmente en el centro del vano vemos que aún se conserva el tope (fig. 196) de las hojas que les daba mayor solidez cuando estaban cerradas, pues tenían un mecanismo de hierro que encajaba en el sillar de arenisca que estaba engarzado y bien anclado al suelo (fig. 199).

Fig. 191.- Vista del camino que desde las eras de valles lleva a la tenada “la coraja” (F. Palomero).
Fig. 192.- Foto aérea de la tenada de “la coraja” (D.G. Catastro)
Fig. 193.- Tenada de la “coraja”, croquis (F. Palomero).
Fig. 194.- Tenada de la “coraja”, fachada sur en su estado actual (F. Palomero).
Fig. 195.- Tenada de la “coraja”, vista del interior en su estado actual (F. Palomero).
Fig. 196.- Tenada de la “coraja”, vista del interior la portada y puerta en su estado actual (F. Palomero).
Fig. 197.-Tenada de la “coraja”, vista de las fachadas este y sur (F. Palomero).
Fig. 198.- Tenada de la “coraja”, del interior de la fachada sur (F. Palomero).
Fig. 199.- Tenada de la “coraja”, jamba izquierda, puerta y dintel (F. Palomero).

J.- Tenada de “cerro collado”.

Fig. 200.- Foto aérea de la tenada de “cerro collado” (D.G. Catastro)

A esta construcción, ubicada en una pequeña loma que separa los términos de “matallana” y “santa olalla”, accedemos por los caminos de concentración que bien tanto desde la zona de los “arroyos” o desde los “vallejuelos” y “vega plumo” (fig. 200). Los datos que hemos podido recabar indican que los propietarios durante el siglo XX fueron Domingo Carazo, con posterioridad su herederos y Simeón Terrazas.

En este caso lo que ha llegado de la construcción hasta nosotros, en realidad parecen dos adosada la una a la otra (fig. 201), apenas permite reconocer los cimientos de ambas. Por lo que hemos podido documentar parece que los muros fueron de piedra arenisca, con barro como ligante, aparejo cercano al sillarejo y cadenas de sillares en los ángulos (fig. 202). Sólo conservamos parte de la portada y ángulo sudoeste de la tenada situada en la zona meridional. Igualmente aún quedan en pie la mayor parte de las basas (fig. 203), en su mayoría con la hembra, para que encajara el pie derecho. La primera de las construcciones orientada de norte a sur, en contra de lo que es habitual, conserva tres filas de basas (fig. 201). Ese hecho nos está indicando que tal vez por el desnivel del terreno, la parte del tejado que daba hacia el este, debía tener mayor superficie que la opuesta y por tanto parece que la viga cumbrera no ocupa el centro exacto de la estructura de madera que sustentaba la cubierta.

La segunda de las construcciones, orientada de oeste a este, también tuvo muros de piedra arenisca, con aparejo de sillarejo, cadenas de sillares y ligante de barro. De lo que fueran los muros conservamos únicamente una parte de los cimientos, nos permite hacer el plano, y parte su alzado en algunos tramos. Igualmente vemos sendas filas de basas (fig. 201) con la correspondiente hembra sobre la se asentó el pie derecho. Hemos de suponer que la cubierta debió ser a dos aguas y que las misma se apeaba se la habitual estructura de madera en forma de parhilera.

Fig. 201.- Croquis de la tenada de “cerro collado” (F. Palomero).
Fig. 202.- Tenada de “cerro collado”, vista desde la fachada sur (F. Palomero).
Fig. 203.- Tenada de “cerro collado”, basa arenisca de pie derecho (F. Palomero).

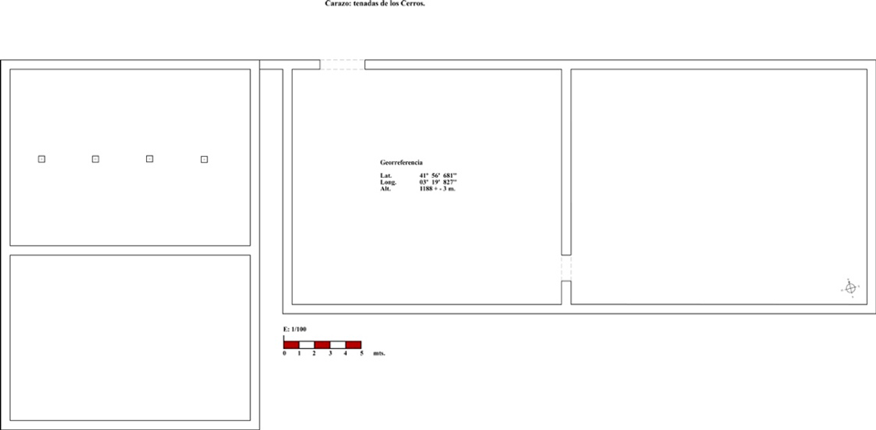
K.- Tenadas de “Los Cerros”.

Fig. 204.- Foto aérea de las tenadas de “los cerros “(D.G. Catastro)

El acceso a estas construcciones lo haremos tomando el camino que desde Carazo parte hacia el enebral. Una vez llegados a los “peñascones” seguiremos hasta la por la “cañada” donde tomaremos un pequeño camino, ahora parece una senda, que siguiendo a pie de monte nos llevará hacia “los sotillos”, “el hundido”, “valluércanos” y, luego de una pequeña ascensión, llegaremos a “los cerros”, donde se ubican los restos de las tenadas del mismo nombre (fig. 204). Los datos que hemos podido recoger indican que uno de los propietarios fue Doña Sebastiana Ontañón. Poco más podemos decir al respecto pues quedaron en desusos hace ya muchos años y no hay memoria de otros propietarios.

Los restos que ha llegado hasta nosotros nos han permitido poder levantar un croquis (fig. 205), conocer las pautas y técnicas constructivas y número de corrales que hubo en pie. Desde el punto de vista técnica los muros son de piedra caliza, de mampostería y los materiales están colocados a hueso (fig. 206, 209 y 210). Utilizan piedra menuda, casi lajas (fig. 206 y 207) con excepción de los ángulo o portadas en donde hay piezas de mayor porte, siguiendo las pautas constructivas que hemos visto en algunas de las tenadas de las “eras de valles” o de otras zonas como las del “pago de arriba”. No podemos aventurar el tipo de cubierta que tuvieron pues la altura de los muros conservados no nos lo permiten. A pesar de ello en una de las tenadas aún se conservan las basas (fig. 210 y 211) sobre las que se apearon los pies derechos. A lo que parece las mismas, sólo hay una hilera (fig. 210 y 211), se debieran corresponder con los pies derechos sobre los que se descargaba la viga cumbrera, por lo que pensamos que la cubierta fue a dos aguas. Más complicado resulta tratar de reconstruir cuál pudiera ser la estructura que sustentaba el tejado. Debemos suponer que fue de armazón de madera, tal vez parhilera, siguiendo lo que es lo habitual en este tipo de construcciones.

Por los datos que hemos podido recoger todo indica que hubo al menos cuatro corrales dos en ubicados en la zona este y otros en la parte occidental y entre ambos parece que hubo un espacio común que debía servir para distribuir el ganado (fig. 205). Incluso hemos podido documentar parte de la división interna (fig. 208 y 209) que señalaba la propiedad de cada uno de los dueños.

Fig. 205.- Tenadas de “los cerros”, croquis del conjunto (F. Palomero).
Fig. 206.- Tenadas de “los cerros”, muro norte de la tenada primera (F. Palomero).
Fig. 207.- Tenadas de “los cerros”, muro de la tenada sureste (F. Palomero).
Fig. 208.- Tenadas de “los cerros”, vista general de las tenadas del este (F. Palomero).
Fig. 209.- Tenadas de “los cerros”, vista de las tenadas del oeste (F. Palomero).
Fig. 210.- Tenadas de “los cerros”, basas de pie derecho (F. Palomero).
Fig. 211.- Tenadas de “los cerros”, basa de pie derecho y división interna (F. Palomero).

L.- Los “corrales de arriba”.

El acceso a estos corrales o tenadas ubicadas en el monte conocido como “enebral”, se hace tomando el camino que desde la población parte hacia “untuido”. Una vez llegados a la erren del “tió Gervasio” tomaremos a mano derecha la senda que nos lleva hacia “peña la Cepa” (fig. 212). Desde la cumbre nos desviaremos a mano derecha y recorridos unos doscientos metros, en un pequeño descampado y a pie de la ladera meridional de “peña la cepa” (fig. 212) habremos llegado a nuestro destino.

La información que hemos podido obtener es que algunos de sus propietarios fueron D. Alejandro Palomero, D. Francisco Camarero, D. Máximo Palomero, Doña Sebastiana Ontañón, D. Francisco Camarero, D. Maximiano Cámara y los hermanos Ramos. En la actualidad lo que fueran tres corrales (fig. 213) son una ruina pero en la que, por los datos que aún quedan en pie, se puede hacer una reconstrucción bastante fiable. La fábrica de sus muros responde a la habitual en estas construcciones de montaña. Son de piedra caliza (fig. 214), en general de tamaño bastante pequeño con excepción de los que vemos en las portadas y en los ángulos que tienden a la cadena de sillares (fig. 216). Están colocados a hueso (fig. 214 y 215), tienen un grosor cercano a los sesenta centímetros y el aparejo el claramente de mampostería (fig. 216) aunque en alguna parte se aproxime al sillarejo (fig. 216). El grosor de los mismos se aproxima a los sesenta centímetros algo normal en este tipo de construcciones en el término de Carazo.

Los corrales se ubican en una zona del monte donde hay un acusado desnivel lo que se deja sentir en la envergadura de los muros, de mucho menor altura los del norte que los del mediodía. La orientación de la construcción viene en parte condicionada por el propio terreno pero podemos decir que las fachadas mayores se encuentran en sentido norte y sur, mientras que las otras dos lo hacen hacia el oeste y este, algo habitual en la mayor parte de las tenadas de este municipio.

Únicamente dos de los corrales (fig. 214) conservan en gran medida los muros mientras que del tercero, situado en la zona de poniente, únicamente hemos podido ver el arranque de los mismos, suficiente para conocer el espacio que ocupara. Por los datos que hemos podido documentar la orientación de la tenada situada en la zona oriental es este oeste pues abre la portada hacia el este. Por el contrario, la situada en el medio (fig. 213), se orientaba en sentido norte-sur pues su puerta abre al mediodía. Aún, con no pocas dificultades, se pueden situar las portadas y constatar que las jambas de las mismas, al igual que los ángulos de la fachada este, tuvieron grandes sillares y cadenas angulares (fig. 216) respectivamente.

El derrumbe que ha sufrido la cubierta impide constatar que haya basas sobre las que se apoyaran los pies derechos. Pese a ello por los restos que aún podemos ver in situ de pies derechos, vigas y cabrios debemos suponer que tuvo estructura de madera y que muy probablemente fuera de parhilera. En todo caso sobre la estructura de madera hubo cubierta de teja curva de tipo árabe. Lo que queda en pie de la fachada occidental indica que se remataba en forma de triángulo de 180º y que la cubierta descendía tanto hacia el norte como al sur con una inclinación similar a la de los tejados que aún se conservan en pie. Igualmente, como hemos señalado con anterioridad, aún se conservan in situ las maderas que conformaron la estructura de la cubierta por lo que hay constancia de la tuvo y qué características debía presentar.

Fig. 212.- Foto aérea de las tenadas de los “corrales de arriba” (D.G. Catastro)
Fig. 213.- Croquis de los “corrales de arriba” (F. Palomero).
Fig. 214.- Vista de los “corrales de arriba” desde el nordeste (F. Palomero).
Fig. 215.- Vista del corral central desde el sur (F. Palomero).
Fig. 216.- “Corrales de arriba”, ángulo sudeste (F. Palomero).

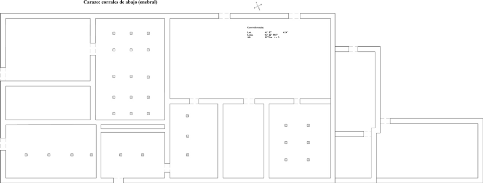
M.- Los “corrales de abajo”.

Fig. 217.- Foto aérea de las tenadas de los “corrales de abajo” (D.G. Catastro).

El acceso a este conjunto de corrales, conocidos como “los corrales de abajo” se hace siguiendo el camino conocido como “senda sendillana” que desde “costaisa” asciende hasta la zona oeste de la cumbre del enebral tomada desde el soto. Una vez arriba hay una pronunciada pendiente y un camino pedregoso que nos llevará a nuestro destino. Si por el contrario deseamos acceder en vehículo, todo terreno o similar, lo haremos por la carretera comarcal 910. Una vez dentro del desfiladero, luego que hayamos atravesado el segundo puente sobre el río Mataviejas, tomaremos el primer camino que encontremos a mano derecha que, a través de una acusada pendiente nos llevará hasta la zona llana del enebral y siguiendo la ruta llegaremos hasta nuestro destino al pie de la cuesta meridional del enebral (fig. 217). A partir de los datos que hemos podido obtener algunos de los propietarios del siglo XX han sido Don Domingo Carazo, D. Zacarías Pinilla, D. Simeón Terrazas, D. Martín Aragón, D. Nicasio, D. Domingo Nebreda, D. Benedicto Aragón et alii.

Estamos ante un conjunto de construcciones que debieron conformar una unidad en el proceso constructivo y que en su mayor parte fueron las obras se realizaron a un mismo tiempo. Por los datos que hemos podido documentar “in situ” el conjunto forma un gran rectángulo cuyos lados de mayor desarrollo son los norte y sur y los menores los otros dos. Al mismo se adosan, en la fachada occidental, sendas tenadas comunicadas entre sí, abiertas hacia el sur y otro espacio del que en la actualidad únicamente queda en pie el arranque de sus muros y aún se puede ver la portada abierta en el ángulo sudeste (fig. 219). La mayor parte de las tenadas conservan las basas sobre las que se apeaban los pies derechos. El material utilizado en la construcción de los muros -de unos sesenta centímetros de grosor- es la piedra caliza. El aparejo que presentan es el de mampostería a veces cercano al sillarejo (fig. 221 a 223). Los muros se hacen a hueso (fig. 222) y los ángulos se significan con las correspondientes cadenas de sillares. Las portadas (fig. 219 y 224 a 226) presentan jambas con sillares de mayor tamaño y un cuidado trabajo. En algunas de ellas aún se conservan las basas (fig. 218 y 221) sobre las que descansaban los pies derechos. Por el tipo de muros existentes podemos decir que la cubierta fue de entramado de madera.

La arqueología indica que formaban una unidad estructural en lo referente a la cubierta las tenadas A, B y C (fig. 218) y que su cumbre se apeaba no sobre vigas cumbreras sino sobre sendos muros situados en la zona central. Tuvo un considerable desarrollo en su zona central superando los tres metros en el ángulo superior. Esta parte, compuesta por tres tenadas D, E y F (fig. 218), presentaba una organización claramente diferenciada de la anterior. El trío abría a un gran espacio completamente abierto y sin cubierta, un corral mocho con sendas portadas en su fachada meridional (fig. 224), al que abrían cada una de las puertas de acceso a la tenada. En dos de ellas hemos documentado la existencia de basas, las de los extremos mientras que la central carece de las mismas (fig. 218). Por lo que queda de sus muros parece que su cubierta tuvo la zona más elevada en los extremos, este y oeste, por lo que tejado debía seguir similar orientación que la de las otras tenadas. Claramente adosadas el muro occidental de las tenadas situadas en el centro, de notable desarrollo, documentamos sendos espacios que abren hacia el mediodía y están comunicados entre sí (fig. 226). No hay basas para apear sobre ellas los pies derechos que parece no debieron existir pues la estructura de la cubierta debió ser de plano inclinado y una única vertiente de caída hacia el oeste. Adosada a esta tenada encontremos otra de planta rectangular de la que únicamente quedan en pie los cimientos y la portada que abre hacia el mediodía (fig. 218). Por lo que hemos podido documentar está adosada a la edificación precedente y parece que no tuvo cubierta pues debió ser un corral mocho.

Estamos ante un conjunto ubicado en la ladera meridional de las cumbres del enebral que miran hacia el valle de la merendilla que por sus características constructivas nos ha permitido conocer mejor la depurada técnica de trabajo y el notable conocimiento del oficio de quienes la levantaron. Al ser una construcción de grandes dimensiones el mismo presentó no pocas dificultades para encajar el conjunto, ante todo el tipo de cubierta. Lamentablemente los tejados se han venido abajo y la mayor parte de la estructura de madera no queda “in situ” pero los muros nos han permitido aproximarnos a cómo pudieron ser las cubiertas y la complejidad y dificultad que debieron salvar quienes las realizaron. La misma factura de los muros, de algo más de sesenta centímetros, la cuidad realización de los ángulos, las portadas y la presencia de durmientes nos hablan de la pericia y dominio del oficio de los canteros que levantaron este conjunto. En todo caso el tipo de trabajo, como hemos visto en otros lugares, es el que documentamos, con las diferencias del material utilizado, en las tenadas de la zona llana. La diferencia fundamental está en que unas se utiliza como ligante el barro y en estas se juega con el tamaño y forma de las piedras calizas para conformar un conjunto de notable estabilidad. En todo caso el muro presenta características muy similares. Igualmente las estructuras de madera de la cubierta y su organización es similar en todos los casos.

Fig. 218.- Corrales de abajo, croquis del conjunto (F. Palomero).
Fig. 219.- Vista de los “corrales de abajo”, acceso a uno de los espacios desde la fachada este (F. Palomero).
Fig. 220.- Vista de los “corrales de abajo”, vistas de un espacio existente entre el corral mocho y la tenada norte de la fachada este (F. Palomero).
Fig. 221.- Vista de los “corrales de abajo”, tenada situada al sudeste, muros norte y oeste (F. Palomero).
Fig. 222.- Vista de los “corrales de abajo”, muro de mampostería con durmiente (F. Palomero).
Fig. 223.- Vista de los “corrales de abajo”, tenada situada al nordeste, muro septentrional (F. Palomero).
Fig. 224.- Vista de los “corrales de abajo”, espacio que precede a tres corrales que abren la portada a corral mocho meridional (F. Palomero).
Fig. 225.- Vista de los “corrales de abajo”, puerta de acceso a una de las tenadas abierta el septentrión (F. Palomero)
Fig. 226.- Vista de los “corrales de abajo”, tenada del oeste, espacio interior y puerta de acceso (F. Palomero).

N.- El “corral del tió Gaspar”.

Fig. 227.- Foto aérea con el espacio que ocupó el conocido como “corral del tió Gaspar” (D.G. Catastro).

Desde la población de Carazo tomaremos el camino que lleva hacia “vallarena”, en el puente tomaremos el camino de la izquierda que nos llevará hasta el collado donde nos desviaremos a mano izquierda. El camino nos llevará hasta la “calera” y el camino de las “llanas” que seguiremos hasta el final donde se ubica el conocido como “coral del tió Gaspar” situado al pie de “collado rasa” (fig. 227).

El conjunto está formado por una serie de grandes rocas y restos de muros que conforman un espacio casi rectangular. En la actualidad únicamente podemos conocer el espacio que ocupaba y la forma que pudo tener pues la mayor parte de los muros han desaparecido. Por tanto sólo dejaremos constancia de que hubo lo que denominamos un “corral mocho”, o aprisco para recoger el ganado en momentos muy puntuales (fig. 228 a 230).

Fig. 228.- Croquis del corral del “tió Gaspar” (F. Palomero).
Fig. 229.- Corral del “tió Gaspar”, detalle (F. Palomero).
Fig. 230.- Corral del “tió Gaspar”, vista parcial (F. Palomero).

O.- Soncarazo: majadas o “corralitos” del estrecho.

Las majadas, corrales o corrales mochos, según la acepción empleado en la población de Carazo hace referencia a espacios delimitados mediante muros, sin cubierta alguna que se utilizaban para guardar y proteger el ganado en momentos puntuales o en la temporada de verano o meses anteriores y posteriores al mismo. Los encontramos como tales en Soncarazo. Parece que se utilizaron desde finales de primavera hasta comienzos del otoño para guardar las ovejas y cabras durante la noche. En las tenadas propiamente dichas, sobre todo en las de las “eras de valles”, “los cerros” y “corrales de abajo”, también existieron dichas majadas o corrales pero con una finalidad diferente, que no era otra que la de separar el ganado de cada uno de los propietarios antes de que accediera a su tenada.

En Soncarazo, en la zona conocida como el estrecho, es donde localizamos tres corrales o majadas de uso puntual y en unas etapas determinados del año para recoger el ganado por la noche y resguardarlo de los ataques de lobos o zorros fundamentalmente. Parece que este tipo de construcciones únicamente se utilizaban en tiempo de verano o a comienzos o finales de dicha estación por lo que no era necesaria la cubierta como en las tenadas propiamente dichas.

1.- Majada nº 1.

Una vez en “la hoz” tomamos la senda que desde la “fuente la mora” sigue hasta el chorro y desde ahí nos conduce, en una prolongada cuesta, hasta la cumbre. Una vez llegados arriba nos desviaremos a mano izquierda y a unos 100 metros, entre una tupida vegetación, localizaremos lo que queda de esta construcción. Su georreferencia es Lat. 41º 59’ 16,8’’, Long. 03º 21’ y 25,4’’ y a una altura de 1383 m. Lo que nos indica lo que queda en pie de los muros es que esta majada tuvo planta cercana al rectángulo (fig. 231), con muros de piedra caliza, colocada a hueso y un grosor cercano a los sesenta centímetros (fig. 232 y 233). En su ángulo sudeste (fig. 231), bien encajada en la fábrica, se localiza una choza de planta cuadrada, muros de piedra caliza, con muros de mampostería y portada abierta al mediodía (fig. 231). Es la parte de del conjunto mejor conservada a la que ya hemos aludido con anterioridad por lo que ahora únicamente citamos.

Fig. 231- Croquis de la majada nº 1 y de la choza que la acompaña (F. Palomero).
Fig. 232.- Restos de los muros de la majada nº 1 del estrecho (F. Palomero).
Fig. 233.- Restos de los muros de la majada nº 1 del estrecho (F. Palomero).

2.- Majada nº 2.

Una vez en “la hoz” tomamos la senda que desde la “fuente la mora” sigue hasta el chorro y desde ahí nos conduce, en una prolongada cuesta, hasta la cumbre. Una vez llegados arriba nos desviaremos a mano derecha y a unos 100 metros, en un espacio abierto pero rodeado de una tupida vegetación, localizaremos lo que queda de esta construcción. Su georreferencia es Lat. 41º 59’ 14,3’’, Long. 03º 21’ y 11,6’’ y a una altura de 1383 m. Lo que podemos colegir de lo que queda en pie de los muros es que esta majada tuvo planta cercana al cuadrángulo (fig. 234), con muros de piedra caliza, colocada a hueso y un grosor cercano a los sesenta centímetros (fig. 235 a 237).

Fig. 234.- Croquis de la majada nº 2 del estrecho (F. Palomero).
Fig. 235.- Restos de los muros de la majada nº 2 del estrecho (F. Palomero).
Fig. 236.- Restos de los muros de la majada nº 2 del estrecho (F. Palomero).
Fig. 237.- Restos de los muros de la majada nº 2 del estrecho (F. Palomero).

3.- Majada nº 3.

Una vez en “la hoz” tomamos la senda que desde la “fuente la mora” sigue hasta el chorro y desde ahí nos conduce, en una prolongada cuesta, hasta la cumbre. Una vez llegados arriba nos desviaremos a mano derecha y a unos 600 metros, en un espacio abierto pero rodeado de una tupida vegetación, localizaremos lo que queda de esta construcción. Está situada casi enfrente de la zona conocida como “valdepuertas” en la zona más este del estrecho. Su georreferencia es Lat. 41º 58’ 9,58’’, Long. 03º 21’ y 6,13’’ y a una altura de 1387 m.

Es un conjunto de dos majadas, incardinada la una en la otra (fig. 238) y mantiene en aceptable estado de conservación los muros. Son de piedra caliza colocada a hueso, aparejo de mampostería y con un grosor cercano a los sesenta centímetros (fig. 239 y 240). Parece claro por los que se puede constatar “in situ” que estamos antes “corrales muchos” que nunca tuvieron cubierta y que fueron pensados y realizados para recoger y resguardar al ganado, ovejas o cabras, en determinadas épocas del año, sobre todo verano y meses cercanos en los que la precipitación era poco significativa y el ganado pastaba en la zona alta.

El tipo de muros (fig. 241 a 244) y su factura pone de manifiesto, una vez más, que quienes realizaron este trabajo conocían el oficio y lo hicieron a conciencia. Como hemos indicado las piedras calizas, apenas trabajadas, están colocadas a hueso y los muros acaban teniendo un aparejo de mampostería (fig. 244). Como es habitual las portadas (fig. 243) las esquinas reciben un tratamiento algo diferente al resto pues utilizan en estos casos piedras más trabajadas y de mayor tamaño llegando a formar cadenas de sillares.

Fig. 238.- Croquis de la majada nº 3 del estrecho (F. Palomero).
Fig. 239.- Restos de los muros de la majada nº 3 del estrecho, espacio situado al este (F. Palomero).
Fig. 240.- Restos de los muros de la majada nº 3 del estrecho (F. Palomero).
Fig. 241.- Muros de la majada nº 3 del estrecho, portada y muro de la más occidental (F. Palomero).
Fig. 242.- Muros de la majada nº 3 del estrecho, espacio meridional (F. Palomero).
Fig. 243.- Muros de la majada nº 3 del estrecho, portada de acceso al espacio meridional (F. Palomero).
Fig. 244.- Muros de la majada nº 3 del estrecho, espacio meridional (F. Palomero).

La Construcción

El Término Municipal

Apuntes Históricos

notas

1Diccionario RAE la define como “mampostería que se hace colocando los mampuestos sin argamasa”.

2VILLANUEVA , J. (1827) Arte de la albañilería e instrucciones para los jóvenes que se dediquen a él, en que se trata de las herramientas necesarias al alabañil, formación de andamios y toda serie de fábricas que se puede hacer. Oficina de Francisco Martinez Dávila impresor de Cámara de S. M. , Madrid, p. 32-33.

3VILLANUEVA, J. 1827 … p. 32

4VILLANUEVA, J. 1827 … p. 34.

5VILLANUEVA, J. 1827 … p. 34.

6VILLANUEVA, J. 1827 … p. 34.

7La leyenda del gráfico es: 1.- Basa; 2.-Pie derecho o pilar; 3.- Viga correa; 4.- Pares; 5.- Viga cumbrera; 6.- Viga carrera; 7.- Pendolón; 8.- Cabrio de la cubierta y 9.- Muro de mampostería o sillarejo.

8En esta tierra se suele emplear el vocablo “talanguera”, en lugar de talanquera o su acepción más antigua taranquera, para referirse a ese tipo de valla o elemento de separación mueble que solía haber en las tenadas. COVARRUBIAS, S. de (1611) Teso de la lengua castellana o española. Luis Sánchez, Madrid, hemos utilizado la edición facsímil de Clásicos Castalia, Madrid, 1995, p. 909, define así Talanquera “Lugar levantado en alto en la orilla de las plazas, dende el cual se ven correr toros y otras fiestas de la plaza…”. Por su parte el diccionario de la RAE dice “Talanquera (Del ant. Taranquera, der. de tranca) Valla, pared o cualquier lugar que sirve de reparo o defensa…”